Verkocht:Rijnenburg 11, 2352 TJ Leiderdorp - Foto
Verkocht
+36

Rijnenburg 11 2352 TJ Leiderdorp

  • Woonhuis
  • 5 kamers
  • 4 slaapkamers
  • 1 badkamers
  • Bouwjaar 1964
  • 151 m² perceeloppervlakte
  • 124 m² gebruiksoppervlakte
  • E Energielabel E

Beschrijving

Op zoek naar een goed onderhouden royale tussenwoning waar je nog helemaal je eigen stijl aan kunt geven? Dan is Rijnenburg 11 precies wat je zoekt. De basis klopt absoluut, maar de tijd heeft hier wat stil gestaan. Gelegen op een rustige, groene locatie in Leiderdorp – direct aan het water en vlakbij alle voorzieningen zoals winkels, scholen, parken en uitvalswegen.

Deze ruime tussenwoning van ruim 120 m² biedt volop mogelijkheden. Wil je meer leefruimte? Dan kun je eventueel uitbouwen en een open keuken realiseren. Hoeft niet, mag wel. Het huis is namelijk goed onderhouden, grotendeels voorzien van kunststof kozijnen met HR++ glas, telt al vier slaapkamers, heeft een aparte berging én een heerlijke zonnige achtertuin op het zuidzuidoosten.

Van deze woning is ook een eigen website beschikbaar en een bouwkundige keuring is ter inzage op de website. Url van de website is straatnaam en het huisnummer aan elkaar en dan .nl
Behalve de foto’s op groot formaat zijn er ook allerlei handige tools. De relevante documentatie kan je hier vinden.

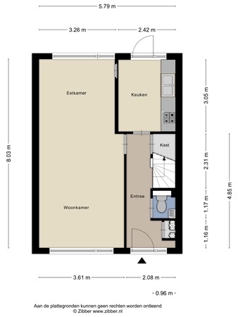
Indeling

Bij binnenkomst heb je meteen dat gevoel van ruimte. Je komt binnen in de hal met de meterkast, de trapkast en het toilet met fonteintje. Het is breed, dat zie je aan alles. Vanuit hier loop je naar de gesloten keuken. De keuken is netjes, functioneel en biedt veel werkruimte, maar is toe aan een update. Stel je voor: die linkermuur eruit en een open leefkeuken creëren. Dat geeft zoveel extra licht en ruimte! Laten we je bij de bezichtiging even zien. Of ga zelf eens ijken via AI wat er kan.
Er is wel een losse oven met gaskookplaat en een koelkast aanwezig, maar je wilt de keuken helemaal eigen maken. Vanuit de keuken loop je zo de achtertuin in – maar eerst even de woonkamer bekijken.
Wat een breedte en wat een daglicht! Grote ramen zorgen voor een fijne sfeer, en met een uitbouw of open keuken haal je nóg meer uit deze mooie ruimte. De woonkamer is nu al prima van formaat dus uitbouwen is echt geen noodzaak.

De tuin is een echte troef: zo’n 75 m² groot (inclusief schuur), gelegen op het zuidzuidoosten. Dat betekent: veel zon! Via de achtertuin bereik je ook de vrijstaande berging en de achterom. Geniet nog even van de tuin en dan door naar boven.

Op de eerste verdieping vind je drie goede slaapkamers en een ruime badkamer met toilet, ligbad en wastafel. Ook hier kun je de indeling nog aanpassen als je dat zou willen – daar denken we graag in mee tijdens de bezichtiging. Tussen twee kamers zit een praktische kastenwand met veel opbergruimte. Ook op deze etage.... ruimte..Door naar de zolder.

De tweede verdieping verrast met een grote voorzolder en een enorme slaapkamer. Hier kun je nog volop uitbreiden: een dakkapel aan de voorzijde bijvoorbeeld, waardoor er ruimte ontstaat voor een extra slaapkamer én zelfs een tweede badkamer. Of 2 slaapkamers en een 2e badkamer... het kan hier allemaal.

Samengevat: een verrassend ruime en goed onderhouden tussenwoning, met volop mogelijkheden om te moderniseren en aan te passen aan jouw wensen. Hier kun je een fantastisch thuis van maken – rustig gelegen, maar overal dichtbij.

Bijzonderheden

- Nagenoeg voorzien van kunststof kozijnen met HR++ glas
- Bouwkundige keuring reeds gemaakt en zichtbaar op www.rijnenburg11.nl
- Extern echt prima onderhouden
- Oplevering kan snel

Kaart

Kenmerken

Overdracht

Referentienummer
05941
Vraagprijs
€ 495.000,- k.k.
Inrichting
Niet gestoffeerd
Inrichting
Niet gemeubileerd
Status
Verkocht
Aanvaarding
In overleg
Aangeboden sinds
Donderdag 8 mei 2025
Laatste wijziging
Donderdag 24 juli 2025

Bouw

Type object
Woonhuis, eengezinswoning, tussenwoning
Soort bouw
Bestaande bouw
Bouwperiode
1964
Dakbedekking
Bitumen
Dakpannen
Type dak
Zadeldak
Isolatievormen
Dubbel glas
HR-glas
Spouwmuren

Oppervlaktes en inhoud

Perceeloppervlakte
151 m²
Woonoppervlakte
124 m²
Inhoud
438 m³
Oppervlakte externe bergruimte
8 m²

Indeling

Aantal bouwlagen
3
Aantal kamers
5 (waarvan 4 slaapkamers)
Aantal badkamers
1 (en 1 apart toilet)

Locatie

Ligging
Aan rustige weg
Aan water
Dichtbij openbaar vervoer
In woonwijk
Nabij school
Nabij snelweg
Nabij winkelcentrum
Open ligging
Vrij uitzicht

Tuin

Type
Achtertuin
Hoofdtuin
Ja
Oriëntering
Zuidoost
Heeft een achterom
Ja
Staat
Normaal
Tuin 2 - Type
Voortuin
Tuin 2 - Oriëntering
Noord-oost
Tuin 2 - Staat
Normaal

Energieverbruik

Energielabel
E

CV ketel

CV ketel
Vaillant
Warmtebron
Gas
Bouwjaar
2013
Combiketel
Ja
Eigendom
Eigendom

Uitrusting

Warm water
CV-ketel
Verwarmingssysteem
Centrale verwarming
Ventilatie methode
Natuurlijke ventilatie
Badkamervoorzieningen
Ligbad
Toilet
Wastafel
Heeft kabel-tv
Ja
Tuin aanwezig
Ja
Telefoonaansluiting aanwezig
Ja
Beschikt over een internetverbinding
Ja
Heeft schuur/berging
Ja

Kadastrale gegevens

Kadastrale aanduiding
Leiderdorp A 5465
Perceeloppervlakte
151 m²
Omvang
Geheel perceel
Eigendomsituatie
Eigen grond

Media

Video

Virtuele tour

Plattegronden