Verkocht:Van der Hoevenstraat 2, 2313 VA Leiden - Foto
Verkocht
+55

Van der Hoevenstraat 2 2313 VA Leiden

  • Woonhuis
  • 5 kamers
  • 4 slaapkamers
  • 1 badkamers
  • Bouwjaar 1939
  • 82 m² perceeloppervlakte
  • 96 m² gebruiksoppervlakte
  • E Energielabel E

Beschrijving

Dit is absoluut weer een parel van een woning in de geliefde Professorenwijk in Leiden. Een jaren ’30 huis met alles wat je wenst: originele details zoals glas-in-lood, hoge plafonds en paneeldeuren, gecombineerd met een luxe en moderne afwerking. Zodra je binnenstapt, valt je mond open van verbazing. Alles klopt hier: de royale woonkamer, de moderne keuken met alle inbouwapparatuur, de praktische bijkeuken, de zonnige tuin, de stijlvolle en luxe badkamer, drie slaapkamers én een aparte waskamer.

In het verleden is de woning volledig gemoderniseerd en sindsdien uitstekend onderhouden. Het resultaat? Een huis dat écht helemaal af is. De ligging is ook echt geweldig. In een gezellige en sfeervolle straat waar de buren elkaar kennen en mensen graag wonen. Rand centrum Leiden, vlakbij NS Lammenschans, en winkels zijn op loopafstand. Kortom, wel de lusten van de stad, maar niet de lasten. Dit huis nodigt je uit.

Van deze woning is ook een eigen website beschikbaar. Url is straatnaam en het huisnummer aan elkaar en dan .nl
Behalve de foto’s op groot formaat zijn er ook allerlei handige tools. De relevante documentatie kan je hier vinden.

Wil je een bezichtiging? Een beller is sneller......

Indeling

We beginnen buiten in de straat. De sfeer hier is geweldig en je voelt je direct thuis. Niet voor niets is dit één van de meest populaire wijken van Leiden. Bij binnenkomst start je in de ontvangsthal met meterkast en paneeldeur mét glas-in-lood: pure jaren ’30 charme. De woonkamer is riant en breed doordat de gang is weggehaald, wat zorgt voor veel licht en ruimte. De erker, het hoge plafond, de parketvloer en de glas-in-loodramen geven karakter, terwijl de moderne afwerking het geheel eigentijds maakt. Kijk ook eens rond en ervaar de ruimte. Dat is vaak in zo'n huis wat beperkt, maar door de bijgetrokken gang heb je dat helemaal niet in dit huis.
In de uitbouw vind je de moderne keuken, compleet met koelkast, vriezer, vaatwasser, oven, gaskookplaat, afzuigkap én aan de andere kant extra kastruimte met de magnetron. De grote bijkeuken biedt volop bergruimte en een modern toilet. Ideaal voor de spullen die je niet dagelijks gebruikt.
Vanuit hier loop je zo de zonnige tuin in van ca. 42 m², met achterom, bergkast en verrassend veel zitplekjes. Gave is natuurlijk de vorm van de tuin. Pas als je in de tuin staat zie je eigenlijk hoe groot deze is en hoe goed deze is gesitueerd op de zon.

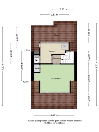
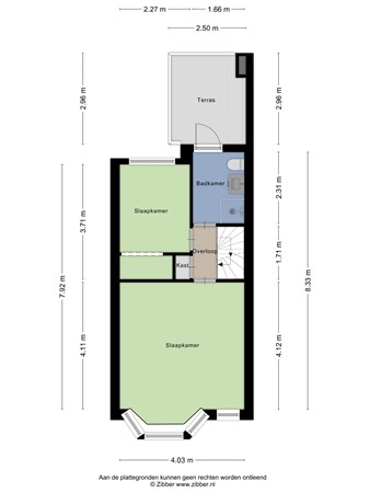
Op de eerste verdieping kom je via de overloop (met vaste kast) in de prachtige master bedroom aan de voorzijde. De erker hier zorgt voor veel licht en extra ruimte. Dit is een echte ruime kamer. Genoeg ruimt voor een groot bed en een grote kast. Master dus.
Aan de achterzijde ligt de tweede slaapkamer, slim vergroot door de voormalige trapkast erbij te trekken. Dit geeft ook een hele aparte sfeer en is als kinderkamer echt een snoepje.
De moderne badkamer heeft elektrische vloerverwarming, een tweede toilet, wastafelmeubel en douchecabine. Geheel af en helemaal van nu. Niet verbouwen, maar gelijk gebruiken. En dan het dakterras: ideaal voor je eerste kop koffie met uitzicht over de binnentuinen.

De tweede verdieping is slim ingedeeld met twee dakkapellen. Hierdoor zijn er twee extra ruimtes: een derde slaapkamer en een waskamer, beide strak afgewerkt en voorzien van vaste kasten. Eventueel kan je dit herindelen als je hier een 4e slaapkamer wilt creëren.

Eigenlijk kunnen we het als volgt samenvatten: Deze woning combineert de sfeer van de jaren ’30 met het comfort van nu. Denk aan glas-in-lood, erkers en hoge plafonds, gecombineerd met een moderne keuken, luxe badkamer, zonnige tuin én een dakterras. Voeg daar nog drie slaapkamers, een bijkeuken en een aparte waskamer aan toe, en je hebt een woning die écht af is.

Kortom: dit is een unieke kans om te wonen in één van de mooiste straten van de Professorenwijk.

Bijzonderheden

-Oplevering begin december 2025
-Strak, modern en helemaal van nu. Wel met gave authentieke details

Kaart

Kenmerken

Overdracht

Vraagprijs
€ 645.000,- k.k.
Status
Verkocht
Aanvaarding
In overleg
Aangeboden sinds
Vrijdag 22 augustus 2025
Laatste wijziging
Vrijdag 19 september 2025

Bouw

Type object
Woonhuis, eengezinswoning, tussenwoning
Soort bouw
Bestaande bouw
Bouwperiode
1939
Dakbedekking
Bitumen
Dakpannen
Type dak
Zadeldak
Isolatievormen
Dakisolatie
Gedeeltelijk dubbel glas
Grotendeels dubbel glas
HR-glas
Spouwmuren

Oppervlaktes en inhoud

Perceeloppervlakte
82 m²
Woonoppervlakte
96 m²
Inhoud
330 m³
Oppervlakte gebouwgebonden buitenruimte
6 m²

Indeling

Aantal bouwlagen
3
Aantal kamers
5 (waarvan 4 slaapkamers)
Aantal badkamers
1 (en 1 apart toilet)

Locatie

Ligging
Aan rustige weg
Beschutte ligging
Dichtbij openbaar vervoer
In woonwijk
Nabij school
Nabij snelweg
Nabij treinstation
Nabij winkelcentrum

Tuin

Type
Achtertuin
Hoofdtuin
Ja
Oriëntering
Zuidoost
Heeft een achterom
Ja
Staat
Goed onderhouden

Energieverbruik

Heeft een energiecertificaat
Ja
Energielabel
E

CV ketel

CV ketel
Nefit Topline
Warmtebron
Gas
Bouwjaar
2011
Combiketel
Ja
Eigendom
Eigendom

Uitrusting

Warm water
CV-ketel
Verwarmingssysteem
Centrale verwarming
Ventilatie methode
Natuurlijke ventilatie
Keukenvoorzieningen
Inbouwapparatuur
Badkamervoorzieningen
Douche
Toilet
Vloerverwarming
Wastafel
Wastafelmeubel
Heeft kabel-tv
Ja
Glasvezelaansluiting aanwezig
Ja
Tuin aanwezig
Ja
Telefoonaansluiting aanwezig
Ja
Beschikt over een internetverbinding
Ja
Heeft een dakraam
Ja

Kadastrale gegevens

Kadastrale aanduiding
Leiden Q 69
Perceeloppervlakte
82 m²
Omvang
Geheel perceel
Eigendomsituatie
Eigen grond

Media

Video

Virtuele tour

Plattegronden