Verkocht:Kruisstraat 8a, 2312 BH Leiden - Foto
Verkocht
+37

Kruisstraat 8a 2312 BH Leiden

  • Appartement
  • 4 kamers
  • 4 slaapkamers
  • 2 badkamers
  • Bouwjaar 1925
  • 85 m² gebruiksoppervlakte
  • C Energielabel C

Beschrijving

Op zoek naar een 4 kamer dubbel bovenhuis in het centrum van Leiden? Aan de rand van het bruisende centrum, op steenworp afstand van de iconische Morspoort, het schilderachtige Galgewater en de gezellige Morsstraat, ligt deze karakteristieke dubbele bovenwoning met balkon op het westen.
De locatie is werkelijk ideaal. Binnen enkele minuten wandelen sta je op de Botermarkt, het Rapenburg of bij het Centraal Station. Ook ben je zo bij de gezellige terrasjes aan de Nieuwe Rijn, de weekmarkt op woensdag en zaterdag en de vele boetiekjes, restaurants en speciaalzaken die Leiden rijk is. De Morsstraat zelf is een charmante straat met onder andere een biologische supermarkt, een ambachtelijke bakker, een koffiezaak en diverse ateliers en galeries. Hier woon je in een levendige buurt vol karakter, met de rust van het water dichtbij en de reuring van het centrum letterlijk om de hoek.

Dit bovenhuis heeft talloze mogelijkheden en is verdeeld over twee volwaardige etages, elk met een eigen keuken, badkamer en woon-/slaapvertrekken. Dat maakt dit pand ideaal voor dubbel gebruik: als twee zelfstandige appartementen óf als één ruime dubbele bovenwoning. De indeling biedt volop flexibiliteit en kansen om het geheel naar eigen wens te moderniseren of juist functioneel gescheiden te houden.

Van deze woning is ook een eigen website beschikbaar. Url is straatnaam en het huisnummer aan elkaar en dan .nl
Behalve de foto’s op groot formaat zijn er ook allerlei handige tools. De relevante documentatie kan je hier vinden.

Indeling

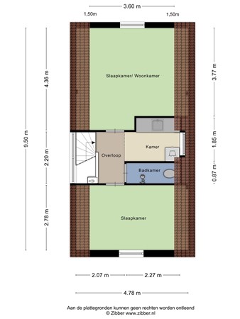
Via het gezamenlijke trappenhuis bereik je de eerste verdieping. De centrale overloop geeft toegang tot alle vertrekken. Aan de voorzijde ligt een royale kamer, perfect als woonkamer of slaapkamer. Aan de achterzijde bevindt zich nog een ruime kamer, eveneens geschikt als slaap- of zitkamer, met directe toegang tot het zonnige balkon op het westen. Hier geniet je in de middag en avond van de zon, met uitzicht over de binnentuinen.

De badkamer is functioneel ingericht met een douchecabine en een wastafel. Daarnaast is er een apart toilet met fonteintje op de overloop. De keuken is ruim van opzet en voorzien van een eenvoudige inrichting. Ook vanuit hier is het balkon toegankelijk. De indeling van deze verdieping biedt veel mogelijkheden en is naar eigen inzicht eenvoudig aan te passen. Denk aan een open keuken, een extra werkplek of het creëren van een ensuite-indeling – we laten je tijdens de bezichtiging graag zien wat er allemaal mogelijk is.

De trap leidt verder naar de tweede verdieping. Ook hier kom je op een centrale overloop, waar zich de CV-ketel bevindt. Aan de voorzijde vind je een lichte kamer met uitzicht op de straatzijde – een ideale plek voor een woonkamer, slaapkamer of werkkamer. Aan de achterzijde is nog een ruime kamer, met voldoende plek voor een tweepersoonsbed, kast en bureau.

Verder is er op deze verdieping een eenvoudige keuken met een compact keukenblokje en een badkamer met douche, toilet en wastafel. Hoewel deze verdieping wat moderner mag worden ingericht, is de basis degelijk. De ruimtes zijn licht en goed geproportioneerd, met tal van mogelijkheden om deze etage te transformeren tot een modern appartement of als onderdeel van één groot en luxe bovenhuis.

Deze woning is uitermate geschikt voor diverse doelgroepen. Denk aan een gezin dat de beide verdiepingen wil samenvoegen tot één ruim woonhuis, óf aan een investeerder of ouder(s) van studerende kinderen die de twee etages afzonderlijk wil verhuren (mits binnen de gemeentelijke regelgeving). De huidige indeling maakt beide opties mogelijk. Ook dubbele bewoning – bijvoorbeeld met ouders, volwassen kinderen of gasten – behoort tot de mogelijkheden.

Extern verkeert het pand in redelijk goede staat, en intern biedt het volop ruimte om jouw eigen woonwensen te realiseren. Een combinatie van karakter, locatie en potentie maakt dit tot een unieke kans in het hart van Leiden.

Bijzonderheden

-Gelegen in het centrum van Leiden, nabij Morspoort, Galgewater, Morsstraat en alle stadse voorzieningen
-Dubbele bovenwoning met twee verdiepingen
-Mogelijkheid tot twee appartementen of één ruime bovenwoning
-Zonnig balkon op het westen
-Twee keukens, twee badkamers, twee toiletten
-Extern redelijk goed onderhouden
-Intern modernisering gewenst – indeling flexibel
-Veel potentie voor eigen invulling en meerwaarde
- Actieve VVE met maandbijdrage van € 191,11

Kaart

Kenmerken

Overdracht

Referentienummer
05966
Vraagprijs
€ 435.000,- k.k.
Servicekosten
€ 191,-
Status
Verkocht
Aanvaarding
In overleg
Aangeboden sinds
Zondag 14 september 2025
Laatste wijziging
Donderdag 23 oktober 2025

Bouw

Type object
Appartement, bovenwoning, dubbelbovenhuis
Woonlaag
2e woonlaag
Soort bouw
Bestaande bouw
Bouwperiode
1925
Dakbedekking
Dakpannen
Type dak
Zadeldak
Isolatievormen
Dakisolatie
Grotendeels dubbel glas
Spouwmuren

Oppervlaktes en inhoud

Woonoppervlakte
85 m²
Inhoud
282 m³
Oppervlakte gebouwgebonden buitenruimte
6 m²
Balkonoppervlakte
6,12 m²

Indeling

Aantal bouwlagen
2
Aantal kamers
4 (waarvan 4 slaapkamers)
Aantal badkamers
2 (en 1 apart toilet)

Locatie

Ligging
Aan rustige weg
Beschutte ligging
Dichtbij openbaar vervoer
In centrum
In woonwijk
Nabij school
Nabij snelweg
Nabij treinstation
Nabij winkelcentrum

Energieverbruik

Energielabel
C
Energie-index
1,61

CV ketel

CV ketel
Remeha TZerra
Warmtebron
Gas
Bouwjaar
2020
Combiketel
Ja
Eigendom
Eigendom

Uitrusting

Warm water
CV-ketel
Verwarmingssysteem
Centrale verwarming
Ventilatie methode
Natuurlijke ventilatie
Badkamervoorzieningen Badkamer 1
Douche
Wastafel
Badkamervoorzieningen Badkamer 2
Douche
Toilet
Wastafel
Heeft een balkon
Ja
Heeft kabel-tv
Ja
Glasvezelaansluiting aanwezig
Ja
Telefoonaansluiting aanwezig
Ja
Beschikt over een internetverbinding
Ja
Heeft een dakraam
Ja

Vereniging van Eigenaren

Ingeschreven bij de KvK
Ja
Jaarlijkse vergadering
Ja
Periodieke bijdrage
Ja
Reservefonds
Ja
Opstal verzekering
Ja

Kadastrale gegevens

Kadastrale aanduiding
Leiden B 3746
Omvang
Appartementsrecht of complex
Eigendomsituatie
Eigen grond

Media

Video

Virtuele tour

Plattegronden